🚰 Dvoručna baterija za sudoperu i lavabo 🕳️ Montaža na jedan otvor 📏 Pokretni izliv 200 mm 💧 Klasa protoka S 💦 NEOPERL® Honeycomb perlator 🔧 Flühs® LIFETIME keramički delovi ✋ Metalni rukohvati 🔇 Klasa bučnosti I
🚰 Poluprofesionalna baterija za sudoperu 🕳️ Montaža na jedan otvor 🔗 Otvorena veza bojler–baterija 💧 Smanjeni protok 3–5 l/min 💦 NEOPERL® FS Dripless perlator 🔧 Keramički mešač KEROX® 40 NDO 🌀 FLEX izliv sa oprugom 🔄 Rotacija izliva 360° 🔇 Klasa bučnosti II
🚰 Dvoručna baterija za sudoperu i lavabo 🕳️ Montaža na jedan otvor 📏 Pokretni izliv 130 mm 💧 Klasa protoka S 💦 NEOPERL® Honeycomb perlator 🔧 Flühs® LIFETIME keramički delovi ✋ Metalni rukohvati 🔇 Klasa bučnosti I
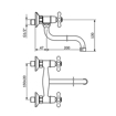
🚰 Dvoručna zidna baterija za sudoperu i lavabo 🧱 Zidna montaža 📏 U izliv dužine 200 mm 💧 Klasa protoka Z – 7 l/min 💦 NEOPERL® Honeycomb perlator 🔧 Flühs® LIFETIME keramički delovi ✋ Metalni rukohvati 🔇 Klasa bučnosti I